Ir al contenido
Inicio
Arquitectura
Objetos
Talleres
Info
Inicio
Arquitectura
Objetos
Talleres
Info
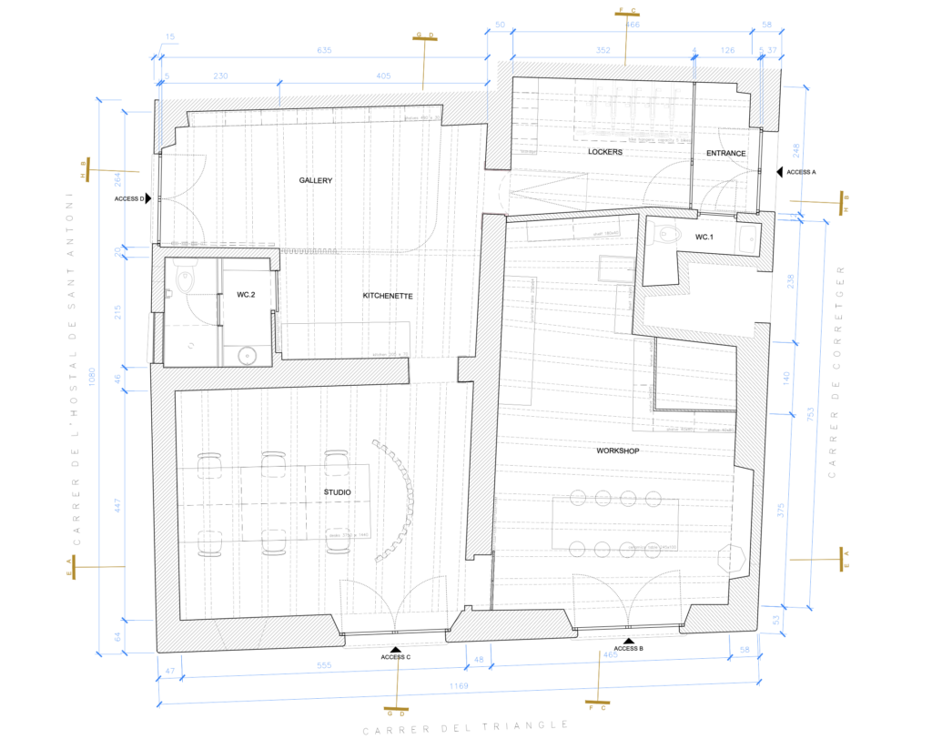
Proyecto
Espai Triangle
Fecha
:
Ubicación
: Barcelona
Scroll al inicio